Erdgeschoss - Ostseerundblick.de - Ferienhäuser in exklusiver Lage auf der Insel Rügen in Baabe und Breege

Direkt zum Seiteninhalt


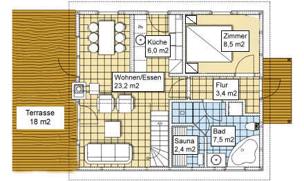
Das Erdgeschoss
(Wohnfläche EG: ca. 56,5 m²)

Im Erdgeschoss befindet sich der Wohnbereich mit einer Sitzgruppe, einer Essecke, einer vollständig eingerichteten Einbauküche sowie das Schlafzimmer mit einem Doppelbett.

Vom Wohnbereich haben Sie direkten Zugang auf die Terrasse mit den entsprechenden Terrassenmöbeln.

Im Badebereich ist eine Toilette, ein Waschbecken, ein Whirlpool und eine Dusche eingerichtet. Nebenan befindet sich die finnische Sauna.

© Thomas Röbig, last update: 20.12.2024
Zurück zum Seiteninhalt